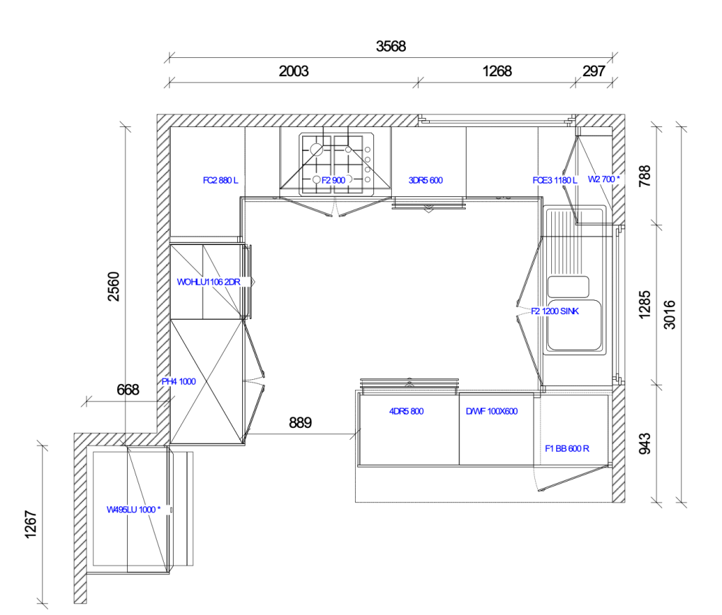
One of the things we immediately noticed when we saw the house is that the kitchen set up is not very user friendly. It looks lovely, but with a corner pantry, and a cooktop that is only accessible from one side, it just doesn’t work for us.

We got kitchen renovators in during the week that we settled and moved into the house, and moved forward as quickly as we could. We got two sets of quotes. I had already been playing around with measurements, and the Ikea kitchen design tool, so had a reasonable idea of what was possible. We are leaving most of the footprint the same, so plumbing and electrics aren’t that different and the floor should not require repolishing.
To finalise the contract as soon as possible, we selected the appliances the following week, so the kitchen measurements could be finalised. Luckily, down in Maroochydoore we managed to find everything we needed and wanted. Again, we have selected middle of the road appliances, with simple clean lines.
The main change in the kitchen, besides a refresh of the look, replacing the travertine benchtop and ceramic knobs, is going to be that the new fridge will take up the area that may have been a rather small breakfast area. This means that we can use what was the fridge space for a new pantry cupboard, and continue with the bench space on the left side of the cooker into the area that was the corner pantry.

We are also installing a gas cooker with a simple range hood.
The kitchen cupboards will be in a simple shaker style, white heat wrapped MDF, to deal with the ever present mould in this area. Wood would have been nice, but this will last longer and you really don’t see much of a difference.
We chose a simple marble-look man made bench top. That should be able to cope with red wine spills, tumeric and saffron, etc. And we got some nice black steel knobs and cup handles, to keep it in style with the shaker theme.
We are looking forward to having a lot more space for cooking, and a normal sink with a draining board next to it. Butchers or Belfast sinks may look pretty, but they crack quickly, and are a pain to keep clean. Bring on the high quality, stainless steel sink that is sunk into the countertop!
We will be doing the laundry area together with the kitchen. Unlike other Queenslanders, our laundry is not downstairs but is instead an add-on to the kitchen as a European Laundry. Easy access and we have gotten used to the noise, living in a small apartment.
It has taken 3 months but everything was delivered at the end of this week. Kitchen demo starts on Monday, and by the weekend we hope to have the new kitchen in. Then it will be two weeks waiting for the stone bench top, as the final measurements don’t get made until the kitchen is in place. We will be able to use the fridge and dishwasher, but as there won’t be a benchtop, we will be limited in what we can do.

There was a bit of a panic moment when my new fridge freezer didn’t fit through the front door. Carrying it down the garden, and then up the stairs to our back deck, is not an option a sane person would select. However, after Mike took off the front door, it thankfully passed through. That was a close call.

We have spent today clearing out the kitchen and the laundry area. Packing up everything in boxes (again), just like moving out. This time we are not going very far though, we are taking the opportunity to road test “The Loft”. Our overspill accomodation next to our cottage above our carport, that we have recently repainted and refurbished for short term accomodation, mainly for friends and family.
As the builders are starting at 7:30 am on Monday morning, and Meisha doesn’t get up until well after 8, we are going to sleep and live in the loft. She will be confined to the loft area, but will be safely away from the building site and the noise.
